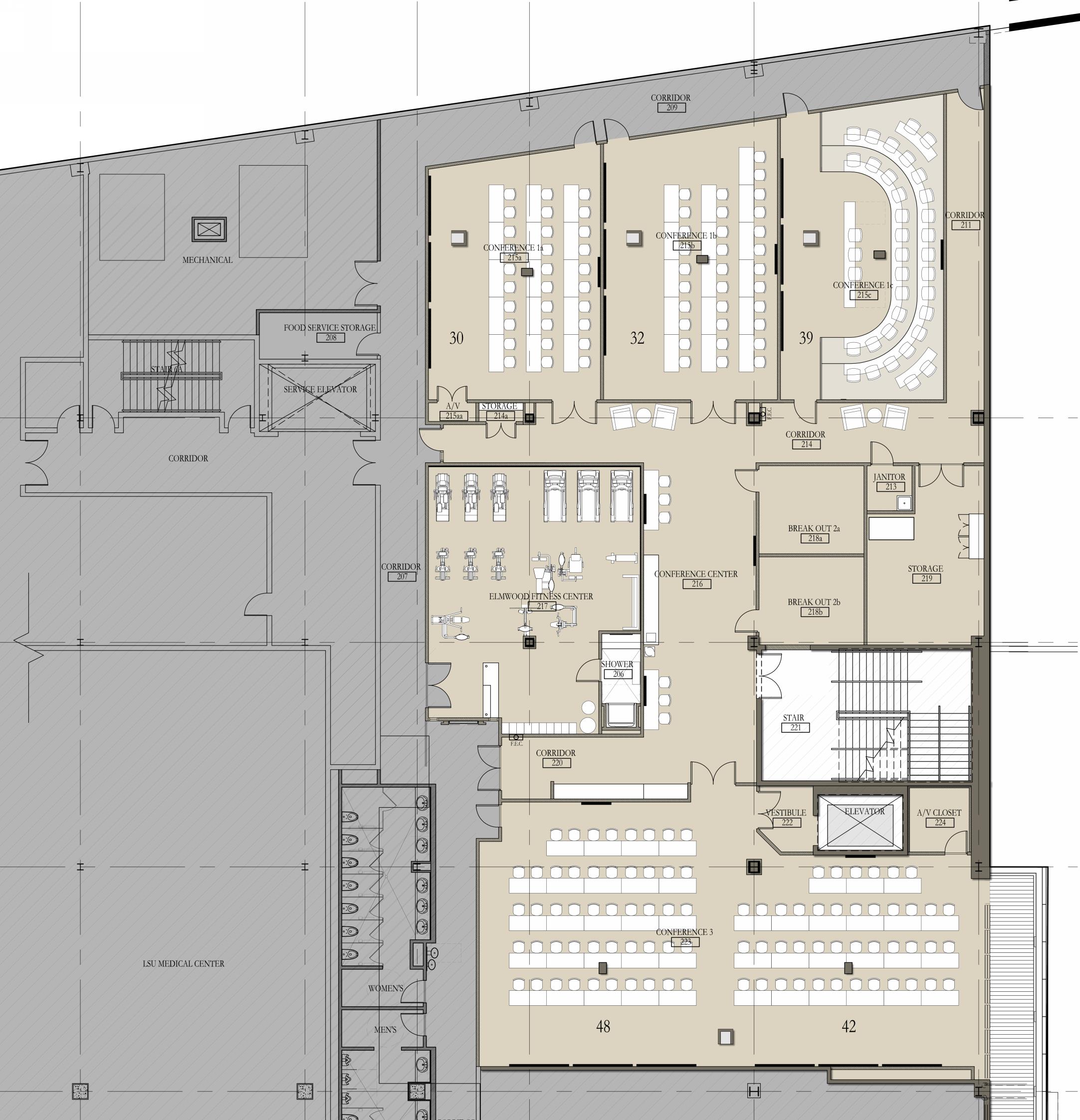
x_Floorplan-Benson_Tower_Floor02

FEATURED STORIES