FEATURED STORIES
Rohit Sood, ALEP, Attends A4LE LearningSCAPES Conference in Phoenix
November 6, 2025H/S Principal Rohit Sood, ALEP, recently attended the A4LE LearningSCAPES Conference in Phoenix, joining fellow members of the A4LE Advanced Academy for a national discussion on the future of educational design. The event featured a special recognition of new ALEP......
Renovated D Vickers Hall Unveiled, Featuring the Robin Roberts Broadcast Media Center
October 20, 2025On Friday, October 17, 2025, Southeastern Louisiana University celebrated a significant milestone with the dedication of the newly renovated D Vickers Hall and the state-of-the-art Robin Roberts Broadcasting Center in Hammond. The event was highlighted by a generous donation from......
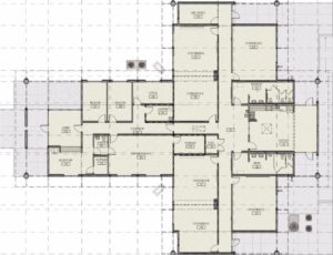
Louisiana Army National Guard Breaks Ground on Lafayette Readiness Center
October 13, 2025The Louisiana Army National Guard held a groundbreaking ceremony on October 8, 2025 for the new Readiness Center in Lafayette. Located on West Congress Street, this sustainably designed 83,943 sq, ft. facility will be highly energy-efficient, constructed from highly resilient,......
Nunez Community College Student Testing and Career Counseling Center Honored with AIA Louisiana Award of Merit
September 30, 2025Holly & Smith Architects is honored to announce that the Nunez Community College Student Testing and Career Counseling Center has been recognized with an Award of Merit at the 2025 AIA Louisiana Design Awards. This student-centered facility was envisioned as......
639 Desire Street Honored with AIA New Orleans Award of Merit for Historic Preservation and Restoration
July 23, 2025Holly & Smith Architects is honored to announce that our restoration of 639 Desire Street has been recognized with a 2025 AIA New Orleans Award of Merit in Historic Preservation and Restoration. Presented at the AIA New Orleans Design Awards......
Celeste Landing Celebrates Grand Opening in New Orleans’ Lower Garden District
April 14, 2025Holly & Smith Architects (H/S) is proud to celebrate the grand opening of Celeste Landing, a transformative affordable housing development in New Orleans' Lower Garden District. Designed by H/S, the project combines the thoughtful restoration of a historic structure with......
Holly & Smith Architects Named Medium Business of the Year by Tangipahoa Chamber
January 28, 2025Holly & Smith Architects (H/S) is proud to announce its recognition as Medium Business of the Year at the 2025 Tangipahoa Chamber Annual Installation and Awards Luncheon. This prestigious honor celebrates the firm’s longstanding commitment to excellence in design, innovation,......
Ribbon-Cutting Ceremony Held for New Louisiana National Guard Readiness Center in Lake Charles
October 21, 2024The Louisiana National Guard celebrated the ribbon-cutting of the new Readiness Center at Chennault International Airport in Lake Charles today, marking a significant milestone for the 3rd Battalion, 156th Infantry Regiment. The new 60,391-square-foot facility, owned by the State of......
Holly & Smith Architects to lead St. Louis Cathedral renovation | Preservation Resource Center of New Orleans (prcno.org)
October 16, 2024Over the last year, Holly & Smith Architects has had the privilege of serving the Catholic Community Foundation, as well as the Archdiocese of New Orleans, in providing a study for the historic St. Louis Cathedral. The goal of this......
UL Lafayette Breaks Ground on New Engineering Building
August 6, 2024Holly & Smith Architects, in joint venture with The Sellers Group, is thrilled to announce the groundbreaking of the University of Louisiana at Lafayette’s new Engineering Building. This 64,700-square-foot facility is designed to meet the needs of UL Lafayette’s expanding......
LSU Barnes Ogden Art and Design Complex, Kentwood Library Branch, and Stoa Group Headquarters each win at the AIA Baton Rouge Rose Awards Gala
July 17, 2024On Thursday, April 25th, AIA Baton Rouge held its annual Rose Awards Gala at The Water Campus, celebrating outstanding design projects in various categories. The H/S team was thrilled to receive the Gold Rose Award for LSU Barnes Ogden Art and......
Southeastern Louisiana University breaks ground on new Robin Roberts Broadcast Media Center at D. Vickers Hall
November 16, 2023In a momentous ceremony attended by Good Morning America Co-Anchor Robin Roberts, Louisiana Governor John Bel Edwards, and representatives from Southeastern Louisiana University, the official groundbreaking for the Robin Roberts Broadcast Media Center and the $40 million renovation of D. Vickers Hall......
Holly & Smith Architects opens new office in Lafayette
June 21, 2022Allons a Lafayette…The Heart of Acadiana! Holly & Smith Architects is returning to its roots! We are thrilled to announce that the firm has expanded to southwest Louisiana with a new office in Lafayette. Around 40 years ago, both H/S......
-300x230.jpg)